✦ ARCHITEKTONICKÝ ŠPERK ✦ Bývajte na najlepšej adrese v meste. UNIKÁTNE SPOJENIE NOBLESY Z ROKU 1938 A MODERNÉHO KOMFORTU. Tento rodinný dom je na predaj. •ulica Ivana Krasku, LUČENEC•
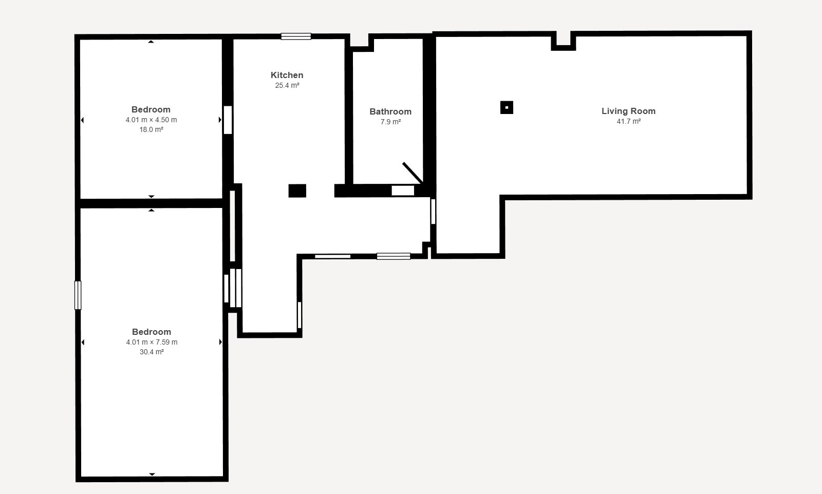
- 245 m2
- 4 Izby
- 1 Kúpeľne
Nehnuteľnosť Prehľad
- CenaCENA ➔ 259,000 €
- Kontaktné meno Mgr. Soňa Chamulová
- Kontaktný telefón0911 358 389
- Rok výroby 1938
- Predávané Nie
- Zmluva Predaj
- Plocha245 m2
- Plocha pozemku579 m2
- Izby4
- Kúpeľne1
Nehnuteľnosť Opis
Rodinný dom, ktorý prežil dekády,
aby dnes dominoval trhu.
Realitná kancelária SOCHA REALITY s.r.o.
ponúka exkluzívne jedinečnú príležitosť
vlastniť rodinný dom, ktorý spája nadčasovú
eleganciu pôvodnej architektúry s komfortom
modernej rekonštrukcie.
Táto nehnuteľnosť sa nachádza v pokojnej
a vyhľadávanej časti mesta Lučenec v blízkosti
parku a predstavuje ideálnu voľbu pre klientov,
ktorí hľadajú viac než len bývanie – hľadajú
skutočný domov s atmosférou.
◆ JEDEN Z NAJPOCTIVEJŠÍCH
DOMOV V MESTE ◆
✦ ZÁHRADA, KTORÁ VÁS BUDE BAVIŤ ✦
Rovinatý pozemok, 20 m² prístrešok a vlastná studňa
s úžitkovou vodou, ideálna pre efektívnu závlahu,
čistých 579 m² pre vaše súkromie a pocit
bezpečia, ktorý vám zaistí moderný
alarm a smart brána.
Toto nie je nákup.
Toto je investícia do pokoja.
Bývanie pre vizionárov, ktorí milujú tradíciu.
Pôvodná stavba z roku 1938
prešla v roku 2002 citlivou rekonštrukciou
a prístavbou, pričom si zachovala svoj
autentický charakter a zároveň získala
praktické dispozičné riešenia
pre moderný život.
⟡ ZASTAVANÁ PLOCHA ⇨ 270 m² ⟡
⟡ ÚŽITKOVÁ PLOCHA ⇨ 245 m² + 20 m² prístrešok ⟡
⟡ OBYTNÁ PLOCHA ⇨ 115 m² ⟡
————————————————————
ČO SA ZMENILO V ROKU 2002?
(TECHNOLÓGIE)
Tento dom nie je len o „pekných izbách“,
je to o poctivom inžinierstve:
➲ KOMPLETNÉ NOVÉ ROZVODY vody a elektriny
➲ ZATEPLENÁ STRECHA s krytinou BRAMAC
– aby ste mali hlavu v suchu a teple.
➲ DREVENÉ EURO OKNÁ ➲ lebo k roku
1938 plast jednoducho nepasuje.
➲ DREVENÉ PARKETY v obytných miestnostiach
podčiarkujú eleganciu interiéru.
➲ DLAŽBY V KUCHYNI, chodbe a kúpeľni
pre maximálnu praktickosť.
➲ DVA KOMÍNY ➲ Jeden nový, druhý
pôvodný, pravidelne udržiavaný.
➲ MODERNÉ KÚRENIE ➲ Plynový kotol
s prietokovým ohrevom vody – komfort,
ktorý k roku 2002 neodmysliteľne patrí.
➲ ÚSTRENÉ KÚRENIE zabezpečené
plynovým kotlom s prietokovým
ohrevom vody.
➲ DOPLNKOVÉ KÚRENIE v podobe
keramických kachlí pre jedinečnú
atmosféru domova.
➲ BEZPEČNOSŤ ➲ Bezdrôtový alarm
s pohybovými senzormi. Spite pokojne.
➲ ELEKTRICKÁ BRÁNA ➲ Pretože sa nám
nechce vystupovať z auta,
aby sme si otvorili.
————————————————————
◆ DISPOZÍCIA S DÔRAZOM
NA PRIESTOR A VARIABILITU ◆
PREJDIME SA TÝMTO PRÍBEHOM…
Hneď ako prídete k domu, privítajú vás
masívne dubové dvere. Žiadna imitácia,
ale poctivý kus dreva, ktorý vás vráti
do čias, kedy sa na materiáloch nešetrilo.
➲ PRÍZEMIE ➲
HARMONICKÝ DOMOV
NA PRVÝ POHĽAD …
Vojdete dnu a okamžite cítite
ten logický tok priestoru:
⧫ Prvé kroky ⧫
Prejdete okolo dvoch priestranných izieb.
Sú svetlé, majú dušu a presne ten správny
„vibe“ pre vašu spálňu či detskú izbu.
⧫ Srdce domu ⧫
Vaša cesta pokračuje do kuchyne, kde máte
všetko poruke, a hneď vedľa je kúpeľňa s WC.
⧫ Cieľová stanica ⧫
Potom sa pred vami otvorí veľkorysá
obývacia izba. Je to srdce celého domu,
miesto, kde sa v roku 1938 stretávali
pri čaji a kde sa vy v roku 2026
stretnete pri dobrom filme.
A tie keramické kachle?
Tie nie sú len na okrasu keď
v nich zapálite, teplo domova
naberie úplne iný rozmer.
➲ POSCHODIE ➲
PRIESTOR, KTORÝ
ČAKÁ NA VÁŠ NÁPAD …
Keď vyjdete na poschodie, nájdete
tam veľkú izbu, ale to najväčšie tajomstvo
ukrývajú dvere oproti, priestranná povala.
Práve tu prebehla v roku 2002 citlivá
rekonštrukcia a prístavba, ktorá
vytvorila neskutočný potenciál.
Tento priestor je darom
pre budúceho majiteľa.
Je to len na vašej vízii.
Dom vám dáva základ,
zvyšok je na vašom
svedomí.
• Túžite po obrovskom ateliéri?
• Chcete tu mať časom ďalšie izby?
• Alebo si tu chcete časom vytvoriť
štýlový podkrovný apartmán?
• Využijete ho ako veľkorysý
úložný priestor.
Dom vám nekladie prekážky,
on vám dáva priestor.
◆ TENTO DOM JE INVESTÍCIOU
DO ŽIVOTNÉHO ŠTÝLU ◆
Je pripravený na okamžité bývanie,
no zároveň ponúka priestor pre realizáciu
vašich snov v podkroví. Je to ideálna voľba
pre klienta, ktorý ocení nadčasovú eleganciu
a nechce robiť kompromisy v kvalite.
Ideálna kombinácia štýlu, kvality
a investično potenciálu.
◆ ZAŽITE JEHO ATMOSFÉRU
HNEĎ TERAZ ◆
Pozývame vás na exkluzívnu 3D videoobhliadku,
kde si môžete každý detail tohto domu z roku 1938
pozrieť z pohodlia domova.
https://my.matterport.com/show/?m=D6bvZiMXr5U
➲ VERDIKT MAKLÉRA ➲
„Investične a technicky ide o jednu
z najlepších ponúk v regióne.
Prečo?
Pretože kupujete hotový produkt
s pridanou hodnotou v podobe
obrovského podkrovia a vlastnej
studne a to na adrese, ktorá
je v Lučenci považovaná
za absolútny strop.
Moje odporúčanie je jasné:
Nečakajte na ‚vhodnejšiu‘ chvíľu.
Nehnuteľnosti tohto typu sa na trhu
neohrejú dlho, pretože ich hodnota
je v ich neopakovateľnosti.“
Dom je kúpou voľný
a predáva sa vrátane zariadenia.
Dohodnite si obhliadku
a nechajte na seba
dýchnuť históriu.
Mgr. Soňa Chamulová ✆ 0911 358 389 ✆
Reality, ktoré majú štýl.
SOCHA REALITY s.r.o.
Sme s vami tam, kde začínajú nové príbehy.
Táto nehnuteľnosť nie je
na prenájom ani na splátky!
Sme SOCHA REALITY s.r.o.
a ctíme si hodnoty, ktoré pretrvajú.
CENA ZAHŔŇA:
✓ Prehlásenie energií
✓ Províziu realitnej kancelárie
✓ Vypracovanie kompletných zmlúv
✓ Daňové priznanie na daň z nehnuteľnosti
✓ Poplatok za vklad do katastra kúpnej zmluvy
✓ Kompletné poradenstvo a financovanie na mieru
CENA NEZAHŔŇA:
✗ Znalecký posudok
(ak nie je zahrnutý v cene)
✗ Geometrický plán (ak je potrebný)
✗ Poplatok za vklad záložného práva
Kúpa nehnuteľnosti nie je jednoduchá,
ako by sa mohlo na prvý pohľad zdať.
Pri tomto procese
čaká na neskúsených množstvo nástrah.
Odložte obavy a nenechajte sa zaskočiť.
My vybavíme všetky potrebné kroky,
vrátane financovania
vami vysnívanej nehnuteľnosti,
ktoré je nastavené každému
na mieru našim odborníkom
na financie s dlhoročnými
praktickými skúsenosťami,
ďalej zabezpečíme znalecký posudok,
komplet servis od A po Z.
Zmluvy, komunikácia s bankou,
kataster, prehlásenie energií,
vrátane daňového priznania – daň
z nehnuteľnosti v januári nasledujúceho roka.
✦ NECHAJTE VŠETKY STAROSTI NA NÁS
A MY ICH VYRIEŠIME ✦
Nenechajte sa prekvapiť nejakou
nepredvídanou situáciou
pri prevode vašich nehnuteľnosti
a zverte tento proces do rúk
skúsených odborníkov,
ktorí vás celým procesom
prevedú bez problémov.
Všetky materiály použité v tomto inzeráte,
podliehajú autorským právam.
ICH POUŽITIE SA TRESTÁ.
Nehnuteľnosť Vybavenie
Občianska vybavenosť
Poloha
Podobné nehnuteľnosti
REZIDENCIA S CHUŤOU ÚSPECHU Váš domov alebo reštaurácia pri hraniciach! 🌟 •NENINCE, okres VEĽKÝ KRTÍŠ• NENINCE, okres Veľký Krtíš
3
Izby
1
Kúpeľňa
